TRAVERSI REAL ESTATE

Società di intermediazione di immobili di prestigio

TRAVERSI REAL ESTATE - 20145 Milano, Via Francesco Ferrucci 8 - Tel. +39 02 34537922 - 98000 Monaco “Monte Carlo Star” , 15 Bld. Louis II - Tel. +377 97771041 - traversirealestate@traversi.info

SPLENDIDO ATTICO ADIACENZE MONTENAPOLEONE DI mq. 600

WONDERFUL PENTHOUSE IN FASHION CiTY CENTER

DESCRIZIONE

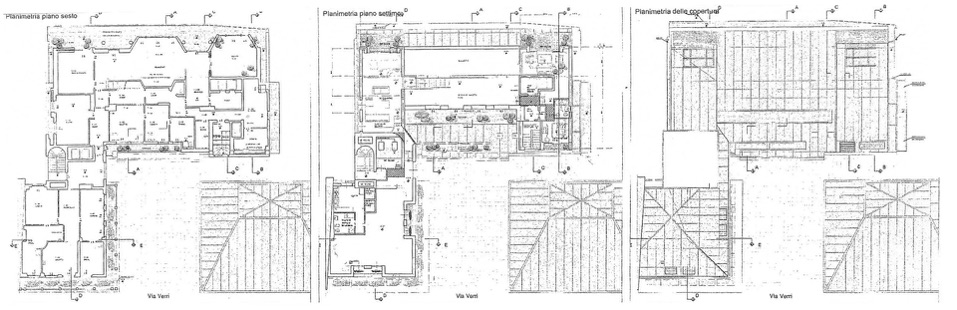
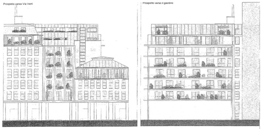
Splendido attico nel quadrilatero di mq. 600 con ampie balconate e possibilità di realizzazione di terrazzo sovrastante.

Due box. Trattative riservate.

DESCRIPTION

Wonderful penthouse, 600 m2 , with large balconies and possibility of realizing a terrace with views.

Two garage spaces. Reserved agreement.